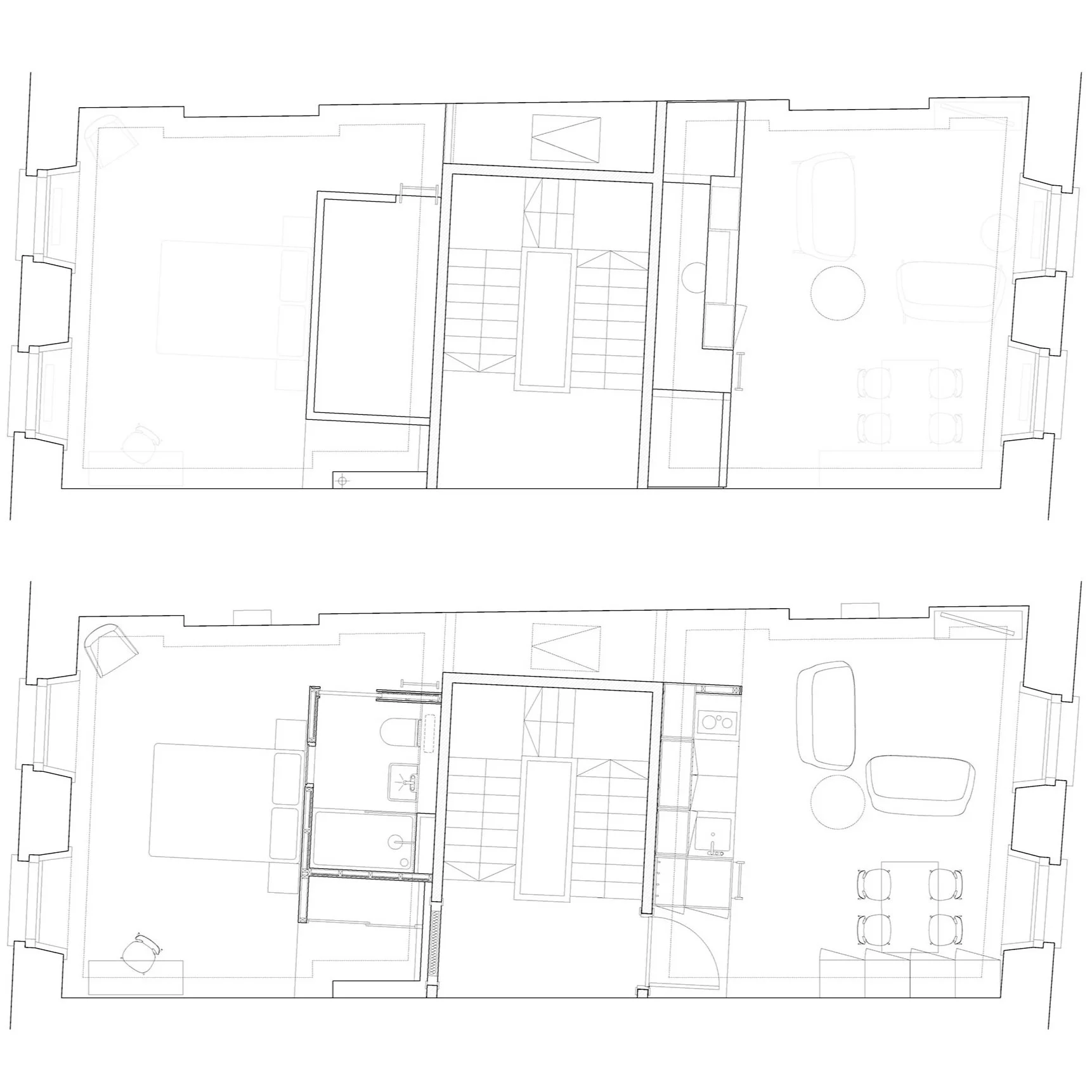
This scheme, at a Grade II listed property in Bristol, removes a number of ill thought out changes to restore the original large proportions of what was once a purpose built office building. A calm and soothing environment has been created for this home using a palette of natural materials and finishes in a contemporary way in contrast the historic building. Highlights of colour have been introduced through the kitchen, bathroom tiles, and furniture.

New bespoke joinery pods have been carefully inserted back into the building to provide a shower room, dressing area and kitchen. To maximise space within the flat, the pods were designed to be accessed on all sides with storage cupboards and deep drawers to hide the everyday appliances and storage needs of daily life. The lid of the pods has been used for a home office over the kitchen and for an additional guest sleeping area on top of the shower room.

❝ Working through the architects SicoloWebb, Murray and George refined the concept for a compact Bristol flat, delivering a design that makes the most of a small footprint.

The project features a self-contained kitchen pod constructed from on-site studwork and clad in birch plywood, with a Fenix finish providing a refined matt texture that contrasts with the surrounding timber. Every element of the pod was designed with purpose, accommodating appliances and bespoke storage, while a mezzanine study area was introduced above, accessed by a custom ladder.

Alongside this, a bench seating and cabinetry system houses a full-height fridge-freezer and a concealed boiler cupboard, providing generous storage and a cohesive material narrative. The project demonstrates thoughtful spatial planning, intelligent material selection, and meticulous craftsmanship, transforming a small space into a highly functional, flexible, and stylish home. ❞

Murray and George from Penroe & King won Kitchen Designer of the Year 2026 for their work on this project.

Status: Completed 2025 | Location: Bristol, South West England | Cost: £50k - £100k

Collaborators: Penroe & King, Build Collective, The Property Photographer

Next
Next

House Renovation & Extension, Dorset